【番外編:デザイナーの冬支度】理想のこたつを求め、3DCADで設計した杉古材の「超薄型」オーダーこたつ。

【思考(Design & Life)】

「ないなら、引くしかない」という職業病

いつもは着物やレザークラフトの「構造」に夢中になっていますが、冬が近づくと避けて通れない問題があります。そう、「こたつ」です。

インテリアに馴染む質感、寝返りを打っても腰骨が当たらないサイズ感……。どれだけECサイトを徘徊して「ポチる」準備をしても、納得できるものに出会えない。

「探すより、引く(設計する)ほうが早い」

というデザイナー特有の職業病が発動し、今回は箸休めとして、本業の道具(3DCAD)を引っ張り出して理想の冬支度を始めた記録をお届けします。

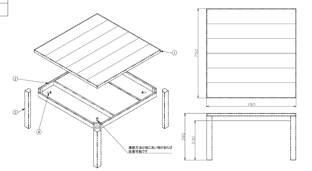
コンマ数ミリの「腰骨スルー・ライン」

一番のこだわりは、「幕板(天板下の横木)」を極限まで薄くすることでした。 こたつの中で寝返りを打ったとき、腰骨がガツンと当たるあのストレス。これを解消するために、ヒーターという「熱源」は排しました。

最近のこたつ布団は優秀です。ヒーターなしでも十分温かい。その分、幕板を薄くし、中に足を入れて横になっても干渉しないクリアランスを確保。CAD上で、強度と薄さのバランス、そして見た目にも美しいバランスにもこだわっています。

表情を変える、杉古材のヘリボーン

天板には、時を刻んだ表情が美しい杉の古材を選択。 表面は職人技が光るヘリボーン(矢羽根貼り)、裏面はラワン突板で素朴さを活かしたプレーンな仕様に。

リバーシブルにすることで、その日の気分やインテリアの雰囲気に合わせて「面」を変えられる。昔からの知恵ですが無駄なく使う着物の設計思想にも通じる、日本人らしい合理性ですよね。

シーズンオフを見据えた「組立式」

こたつの弱点は、使わない時期の圧倒的な存在感(邪魔さ)です。 そのため、脚は簡単に取り外しができるノックダウン式(組立式)で設計。不要な時期はコンパクトに収納し、空間を元の「平面」に戻す。あたり前のことですがこういうのもプロダクトデザインですね。

今回の「理想」を形にしてくれたパートナー

プロダクトデザイナーが引いた「幕板を極限まで薄く」なんていう我がままな図面を、高い解像度で実体化してくれたのは、岐阜県にある「KURO(黒田工務店)」さんです。

仕事上のつながりで知った会社なのですが、BtoBだけでなく個人の特注(BtoC)にも柔軟に対応できる体制を持たれています。今回依頼を決めた理由は、主に4つ。

  • 杉古材のプロフェッショナル: 日本の杉古材を、驚くほど良心的な価格でプロダクトへと昇華してくれます。
  • 職人設計の安心感: 大工職人の方が設計・製作を担っているため、こちらが提示した「薄さ」に対しても、構造的な強度を担保した上での提案をいただけました。
  • 環境への配慮: 塗装は自然由来のウレタン塗装を選択可能。古材の質感を活かしつつ、肌に触れる家具としての安心感も両立しています。
  • 対話できる柔軟性: ノックダウン式というこちらの意図を汲み取り、精度高く仕上げていただきました。

「理想はあるけれど、どこに頼めばいいかわからない」という方にとって、非常に心強い存在です。

▼ KURO ONLINE SHOP(特注・オーダーの相談も可能です)https://online.kuro-japan.com/

次は梅の香を楽しんで来ます

正直、よいものは高いし探すと骨が折れるので既製品を買う方よりも図面引いて(正直、速攻で引ける内容。。)オーダーしちゃったほうが断然楽です!自分の身体感覚に合わせて図面を引き、職人さんにある程度構造の詳細は作りやすいようにお願いしちゃっています。

けっこう気に入っているので、ブログの物撮りはこの天板の上でしています!(撮影環境が良くないので写りはいまいちですがご容赦ください。。)

さて、箸休めはここまで。次は、梅の季節を楽しみたいので、着物でお出かけする記事をアップ予定です!

コメント

タイトルとURLをコピーしました